Hirdetésfeladás Kapcsolat

Fővárosi és Pest megyei lakások és házak ellenőrzött forrásból
Eladó Téglalakás, Cegléd, Hívja a tulajdonost!
#698422139
59 millió Ft
Alapterület 70 m2,  100 m2-es telken
Szobák száma 4 szoba
Építési mód Tégla
Állapot Új építésű
Emelet 1. emelet

További paraméterek

  • Kilátás: Kertre néző
  • Fűtés: Hőszivattyú
  • Szintek száma: 2
  • Komfort: Összkomfort
  • Energetika: A+

Részletes leírás

Hirdetünk ön helyett!

Az ingatlan közvetlenül a tulajdonostól eladó, elérhetősége: Egressi Zsolt +36309437452

 

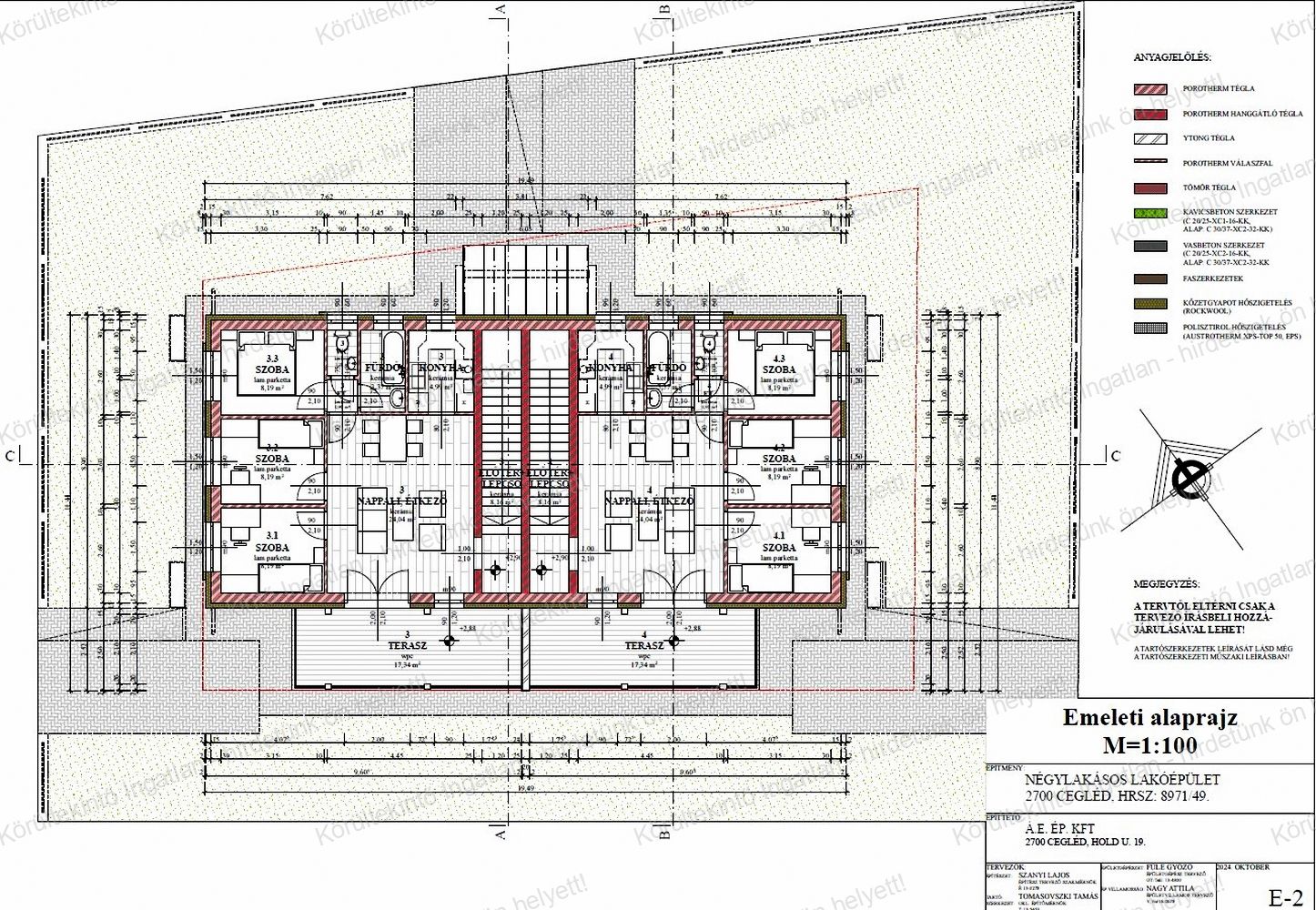
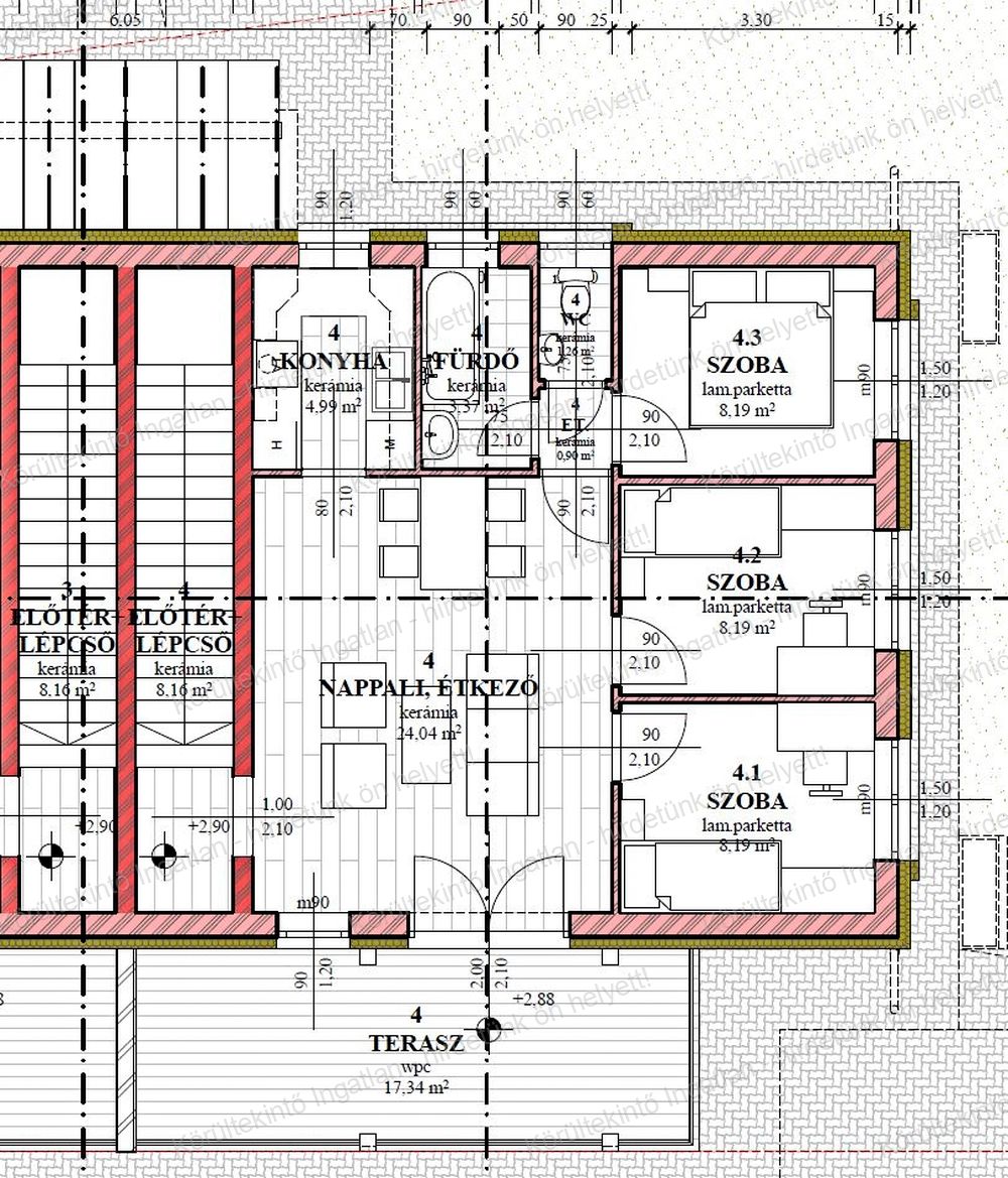
Cegléden, új utcában, új lakóparkban épülő, 4 lakásos társasház 1. emeletén 70 m²-es, 4 szobás, erkélyes (13 nm), kb. 100 nm kizárólagos használatú kerttel és a társasház udvarán belül egy darab, burkolt kocsibeállóval rendelkező tégla lakás eladó.
A lakás nappalija déli fekvésű, a lakás hőszivattyús fűtésű, A+ energetikai besorolású.
Az építkezés folyamatban van, várható átadás: 2025.11.30.

Kapcsolat

Egressi Zsolt (tulajdonos)

Ossza meg a hirdetést:
FacebookGplusTwitter