|
195 millió Ft
|
|
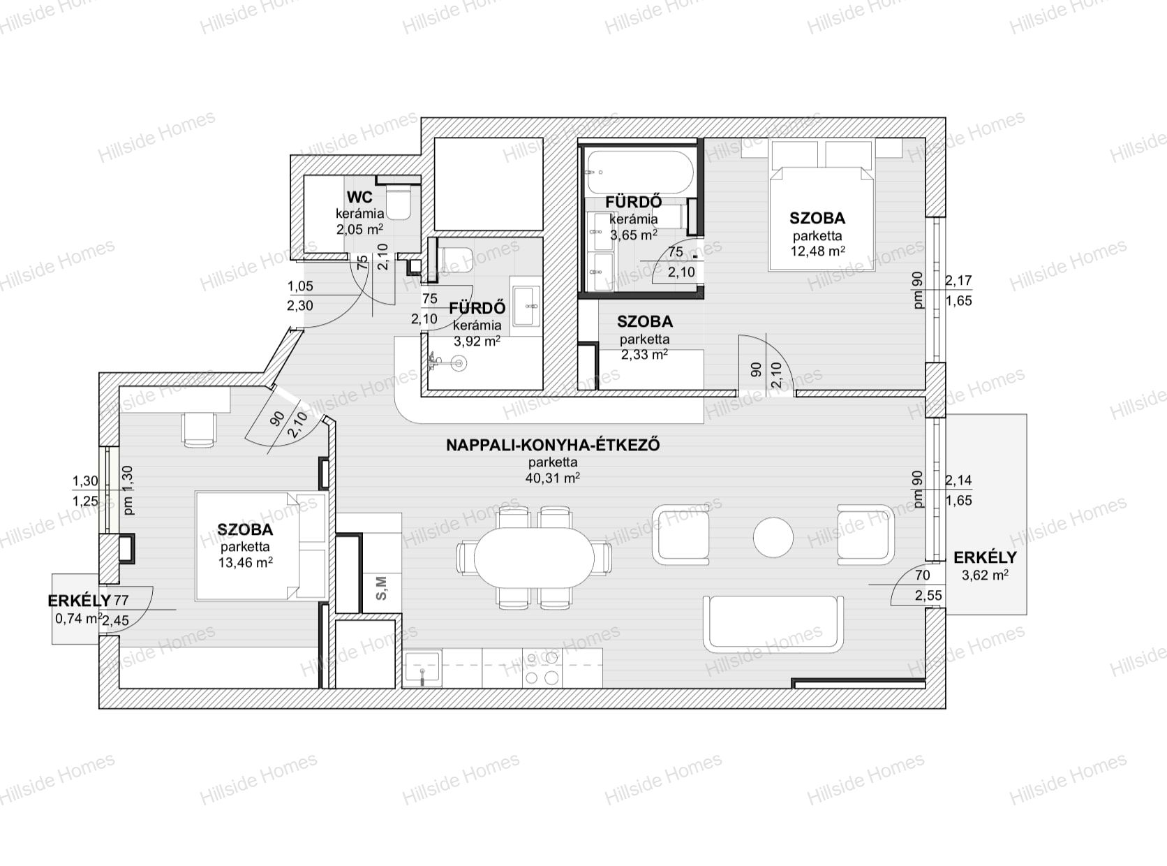
| Alapterület | 78 m2 |
| Szobák száma | 3 szoba |
| Építési mód | Tégla |
| Állapot | Kiváló |
| Emelet | 3. emelet |
További paraméterek
Azonnal költözhető
Jó közlekedéssel- Kilátás: Udvari
- Fűtés: Házközponti egyedi méréssel
- Bútorozottság: Bútorozott
- Szintek száma: 5
- Komfort: Dupla komfort
- Energetika: D
- Akadálymentesítés: Akadálymentesített
Részletes leírás
Kifinomult Elegancia Újlipótváros Szívében – Exkluzív Téglalakás Eladó
Fedezze fel ezt a lenyűgöző, teljes körűen felújított, 78 nm-es, erkélyes téglalakást Budapest XIII. kerületének egyik legkedveltebb részén, Újlipótvárosban. A Bauhaus stílusú, liftes társasház harmadik emeletén található ingatlan lakberendező által tervezett, modern és elegáns otthon, amely tökéletes harmóniát kínál a kényelem és a stílus között. Az új tulajdonos azonnal költözhető, kulcsrakész lakást kap, amely minden igényt kielégít.
A lakás előnyei:
A 78 nm-es lakás teljes körű felújításon esett át, beleértve a víz- és villanyhálózat, valamint a fűtésrendszer korszerűsítését. Háromrétegű, hang- és hőszigetelt nyílászárók, felújított bejárati és új beltéri ajtók, valamint egyedi tervezésű bútorok biztosítják a prémium minőséget. Az elosztás ideális: tágas előszoba tárolószekrényekkel, egy privát erkéllyel rendelkező hálószoba, világos konyha-étkező-nappali tér, valamint egy gardróbos fő hálószoba kádas fürdőszobával.
Az azonnal költözhető lakás légkondicionált, világos és csendes, alacsony fenntartási költségekkel. A vételár tartalmazza a beépített gépeket, az egyedi bútorokat és a társasházban található tárolót, így valódi értéket kínál. A lakberendezői munka és a minőségi anyagok garantálják az otthon meleg, ugyanakkor exkluzív hangulatát.
Közlekedés és infrastruktúra:
A környék kiváló infrastruktúrával rendelkezik, bevásárlási lehetőségek, éttermek és kávézók széles választéka várja az új lakókat. A tömegközlekedési kapcsolatok kiemelkedőek, a Nyugati tér és több metró-, villamos- és buszmegálló is könnyen elérhető. Az utcai parkolás kényelmesen megoldható a ház előtt.
Ez a lakás tökéletes választás azok számára, akik egy modern, igényes otthont keresnek Budapest egyik legvonzóbb környékén. A gondosan megtervezett terek, a minőségi kivitelezés és a páratlan lokáció garantálja, hogy új otthona nemcsak kényelmes, hanem inspiráló is lesz. Vegye fel velünk a kapcsolatot, és ismerje meg közelebbről ezt az egyedülálló lehetőséget!

