Hirdetésfeladás Kapcsolat

Fővárosi és Pest megyei lakások és házak ellenőrzött forrásból
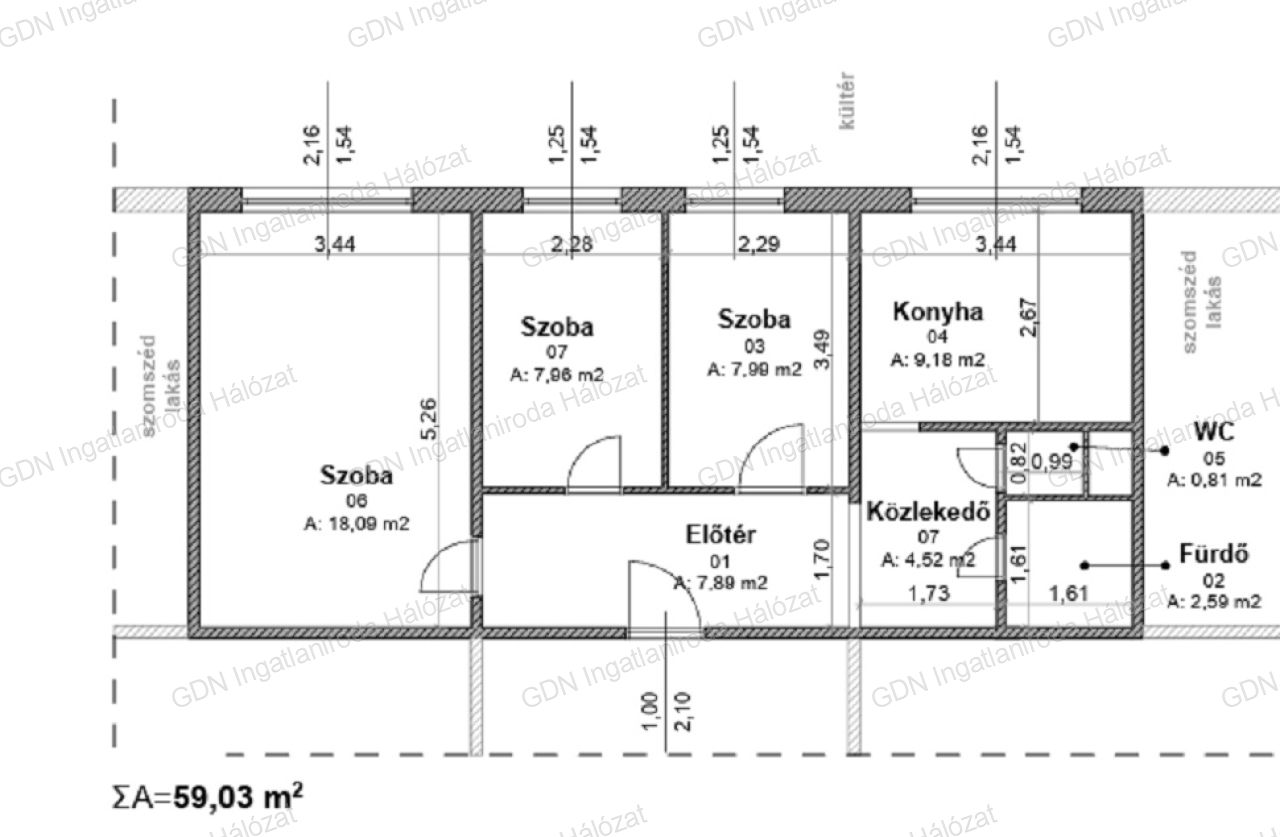
Eladó Panellakás, Budapest, XX. kerület
#387922
69.9 millió Ft
Alapterület 59 m2
Szobák száma 1 szoba + 2 félszoba
Építési mód nincs megadva
Állapot
Emelet 3. emelet

További paraméterek

  • Kilátás: Panorámás
  • Fűtés: Távfűtés
  • Komfort: Összkomfort

Részletes leírás

4 EMELETES TÁRSASHÁZBAN, III. EMELETI, 1+2 FÉLSZOBÁS, JÓ ÁLLAPOTÚ LAKÁS ELADÓ!!! XX. kerületben, Erzsébetfalván, Török Flóris út csendes, belső részén, rendezett, tiszta, 4 emeletes társasházban, III. emeleti, 59 nm-es, 1+2 félszobás, JÓ ÁLLAPOTÚ, távfűtéses, klímával felszerelt (hűtő - fűtő), Nyugati fekvésű, műanyag nyílászárós (redőnnyel, rovarhálóval), rendkívül jó elosztású (külön nyíló szobás), alacsony rezsi költségű, gardróbos, gépesített ablakos konyhás, lakás eladó! A felújítás során a villany vezetékek, a hideg, meleg burkolatok, nyílászárók (redőny, rovarháló), bejárati ajtó (biztonsági), radiátorok teljes cseréje megtörtént. Továbbiakban a fürdőszoba és a külön wc is felújítást kapott. A lakáshoz tartozik egy 5 nm-es tároló. A környék ellátottsága, infrastruktúrája kiváló, a közelben a központ, piac, óvoda, iskola, számos szolgáltatás - és bevásárlási (Lidl, Spar, Penny) lehetőség, uszoda, jégcsarnok, orvosi rendelő található, a Boráros tér 10-15 perc alatt elérhető, HÉV, vasút, busz - és villamos megállók, Duna part sétatávolságra. A ház előtt és mögött is kényelmesen lehet személygépkocsival parkolni ingyenesen. Érdemes megnézni, bővebb információért hívjon bizalommal akár hétvégén is! L.D INGYENES hitel tanácsadás, CSOK Plusz ügyintézés! BANKFÜGGETLEN hitelcentrumunk az összes elérhető bank és hitelintézet ajánlatát versenyezteti az Ön kedvéért, ráadásul DÍJMENTESEN. - Egyedi, bankfiókban nem elérhető kamat- és díjkedvezmények - Hitelképesség vizsgálat - Idő, energia és pénz megtakarítás - Teljes hivatali ügyintézés

Kapcsolat

Lenti Dávid

Ossza meg a hirdetést:
FacebookGplusTwitter