Eladó Családi ház, Délegyháza
#716300843
|
84.9 millió Ft
|
|
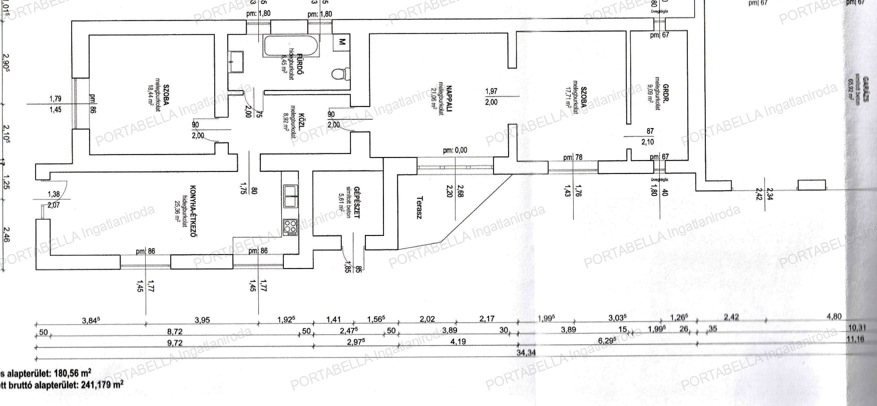
| Alapterület | 180 m2, 857 m2-es telken |
| Szobák száma | 3 szoba |
| Építési mód | Vegyes |
| Állapot | Jó |
| Emelet | nincs megadva |
További paraméterek
Kertkapcsolatos
Zöldövezeti- Kilátás: Kertre néző
- Fűtés: Cirkó
- Bútorozottság: Részben bútorozott
- Komfort: Összkomfort
- Internet: Optikai
- Akadálymentesítés: Részben akadálymentesített

